Определение и видове разпределителни уредби за ниско напрежение
Jul 13, 2023
Определение и видове разпределителни уредби за ниско напрежение
Комутационните апарати за ниско напрежение са подходящи за индустрии като електроцентрали, петролна, химическа, металургична, текстилна, високи сгради и др., и се използват за пренос, разпределение и преобразуване на енергия. Продуктът отговаря на стандартните разпоредби на IEC439-1 и GB7251.1-1997 „Пълна комутационна апаратура за ниско напрежение“. Разпределителната уредба за ниско напрежение е преминала национален сертификат 3C. Има следните видове:
Изтегляща се комутационна апаратура за ниско напрежение GCL
Разпределителна апаратура за ниско напрежение тип GCS
Разпределителна апаратура за ниско напрежение тип GCS
GCK подвижна разпределителна уредба
GGD стационарна разпределителна апаратура за ниско напрежение
Сглобена КРУ ниско напрежение
Разпределителна апаратура за ниско напрежение тип MNSC
Разпределителна апаратура за ниско напрежение MS
Разпределителна апаратура за ниско напрежение тип GCS
MNSQH изваждаща се комутационна апаратура за ниско напрежение
Разпределителна апаратура за ниско напрежение тип GCS
GCK (L) комутационна апаратура за ниско напрежение
1. От гледна точка на структурната форма
(1) Фиксиран:
Той може да гарантира, че всички електрически компоненти са надеждно фиксирани на определеното място в шкафа. Външният вид на шкафа обикновено е кубичен, като тип екран, тип кутия и т.н., а има и призматични платформи като десктоп. Този тип шкафове са едноредови, а също и подредба.
За да се осигури формата и размерът на тялото на шкафа, често се приема метод на комбиниране стъпка по стъпка за всеки компонент, обикновено състоящ се от две части или първо от лявата и дясната страна, след което се оформя тялото на шкафа или се срещат първо изискванията за външен вид и след това последователно свързване на вътрешните опорни части на тялото на шкафа. Дължината на частите, които изграждат ръбовете на тялото на шкафа, трябва да бъде правилна (с отрицателен толеранс), за да се осигурят геометричните размери във всички аспекти и по този начин да се осигурят общите изисквания за външен вид. За двете страни на шкафа трябва да се съобрази разположението, като в средата не трябва да има издатини.
Освен това, от гледна точка на монтажа, не трябва да има хлътване на долната повърхност. При монтажа на подреждането изравняването на основата е задължително условие, но има някои грешки в сухотата и самия шкаф. При подреждането е необходимо да се опитате да компенсирате хоризонталната разлика колкото е възможно повече, вместо да причинявате натрупване на разлика, тъй като натрупването на разлика ще причини деформация на шкафа, ще повлияе на връзката на шината, ще причини отклонение при инсталиране на компоненти, напрежение концентрация и дори да повлияят на продължителността на живота на електрическите уреди. Ето защо, когато подреждате, препоръчително е да използвате най-високата точка на основата като референтна точка за монтаж и след това постепенно да смекчите и разширите дренажа. При идеални и предвидими условия за сухота на долната повърхност, методът на разширяване от средата към двете страни също може да бъде приет за равномерно разпределение на натрупаната разлика.
За да се улесни настройката и натрупването на толеранс на отместване, толерансът на ширината на шкафа се приема като отрицателна стойност. След като комбинацията от различни компоненти на шкафа е завършена, трябва да се извърши необходимото оформяне, за да се изпълнят изискванията за размерите на всяка част. Когато се произвеждат фиксирани или големи партидни шкафове, трябва да се обърне пълно внимание на използването на приспособления, за да се осигури правилната и унифицирана структура. Референтната равнина на приспособленията трябва да се основава на долната повърхност, а оформлението на всеки блок за позициониране в приспособлението трябва да се основава на удобството за отстраняване на работата. За външните врати на шкафа, които лесно се повлияват при транспортиране и монтаж, обикновено се правят унифицирани настройки по време на монтажа.
2) Тип теглене:
Изтеглящият се тип се състои от неподвижно тяло на шкафа и подвижна част на устройството, оборудвана с основни електрически компоненти, като превключватели. Подвижната част трябва да бъде лека и надеждна, когато се премества, а чекмеджетата от същия тип и спецификация могат надеждно да се сменят. Методът на обработка на тялото на шкафа при изтеглящ се тип е по същество подобен на този при фиксиран тип. Въпреки това, поради изискванията за взаимозаменяемост, точността на тялото на шкафа трябва да бъде подобрена и съответните части на конструкцията трябва да имат достатъчна настройка. Що се отнася до подвижната част на устройството, тя трябва да може да бъде заменена, като същевременно поддържа надеждно основните компоненти. Следователно той трябва да има висока механична якост и точност, а съответните части също трябва да имат достатъчна настройка.
Характеристиките на процеса на производство на шкафове за ниско напрежение тип чекмедже са: (1) трябва да има унифициран референтен стандарт за неподвижните и подвижните части; (2) Съответните части трябва да бъдат регулирани в оптимална позиция, като се използват специализирани стандартни инструменти, включително стандартни шкафове и чекмеджета; (3) Грешката на ключовите размери не може да надвишава толеранса; (4) Взаимозаменяемостта на чекмеджета от същия тип и спецификация трябва да бъде надеждна.
2. От гледна точка на метода на свързване
(1) Тип заваряване:
Предимствата му са удобна обработка, здрав и надежден; Недостатъците са големи грешки, лесна деформация, трудност при регулиране и липса на естетика и детайлът обикновено не може да бъде предварително покрит. Освен това има определени изисквания за заваръчните скоби:
① Добра твърдост, не се влияе от деформация на детайла;
② Общият размер е малко по-голям от номиналния размер на детайла, което може да компенсира въздействието на свиването след заваряване;
③ Плосък, прост и лесен за работа, свеждайки до минимум въртящите се механизми, за да се избегне задръстване;
④ За да се предотврати корозията при заваряване и да се улесни поддръжката и настройката, е необходимо да изберете добра опора за детайла и да добавите антикорозионни подложки за опора.
Феноменът на деформация на детайлите след заваряване се причинява от напрежението, причинено от разширяването на нагретите молекули на мястото на заваряване, което води до микроскопично изместване и невъзможност за нулиране след охлаждане. За да се преодолее влиянието на деформацията, е необходимо да се вземе предвид процесът на оформяне. Методите на пластичната хирургия обикновено включват:
① Предскажете обхвата на деформация на детайла чрез експерименти, принудете детайла да се деформира в обратна посока преди заваряване, за да достигне предварително определения размер след заваряване;
② След заваряване коригирайте, като използвате правилния метод;
③ След ударно и пресово заваряване се получава относителната част на свиване, за да се получи баланс на напрежението;
④ След нагряване и заваряване, относително свободните и изпъкнали части постигат същото свиване като зоната на заваряване;
⑤ Ако е необходимо, извършете цялостна топлинна обработка на компонентите.
Освен това изборът на точки на заваряване, посоката на заваряване, последователността на заваряване и позиционирането на точковото заваряване оказват определено влияние върху явлението деформация след заваряване. Ако се работи правилно, деформацията може да бъде намалена, но това зависи от конкретната ситуация.
(2) Свързване на крепежни елементи:
Неговите предимства са подходящи за предварително покритие на детайли, лесни за промяна и настройка, лесни за разкрасяване, стандартизиран дизайн на компоненти и предварителен производствен инвентар. Общата грешка в размера на структурата е малка. Недостатъкът е, че не е толкова здрав като заваряването, изисква висока прецизност на компонентите и относително високи разходи за обработка. Крепежните елементи обикновено са стандартни компоненти, включващи главно конвенционални винтове, гайки и нитове, нитове за издърпване, предварително натегнати и регулируеми затягащи гайки и предварително напрегнати гайки за издърпване, както и самонарезни винтове. Има и специални закрепващи винтове (като повечето нисковолтови шкафове, внесени от чужбина, използват специални закрепващи винтове).
Характеристики на процеса: фиксирани с приспособления, позиционирани с приспособления и оборудвани с шайби под налягане, ако е необходимо; Занитването обикновено изисква пробиване и предварително покритите части трябва да предотвратяват повреда на покритието; За компоненти, обработени с прецизни обработващи центрове или специализирано оборудване, ако има малка междина между свързващия отвор и диаметъра на крепежния елемент, те могат да бъдат сглобени без приспособления и оформени наведнъж; За закрепването на направляващите и позициониращите компоненти първо трябва да се използват специални измервателни инструменти за позициониране, а след това стандартни инструменти за тестване
ПРОДУКТОВА ВРЪЗКА
http://www.switchgear-china.com/switchgear/low-voltage-switchgear/ac-low-voltage-distribution-cabinet.html
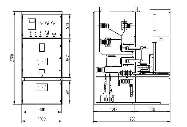
СНИМКА НА ПРОДУКТА







Този продукт обикновено се персонализира.
Ние сме производител и имаме професионален технически отдел, който може да проектира и предостави решения според нуждите на клиента.
Моля, свържете се с нашия търговски персонал, за да получите проектни чертежи
Ето нашите примери за клиенти за ваша справка
Клиенти от Уганда
| GCS LV Изтегляща се комутационна апаратура | ||
| S.N. | Спецификации | Да/Не/Ако има такива |
| Електрически панел (нисковолтов изтеглящ се разпределителен шкаф) | ||
| производител | ||
| Марка | ||
| Тип/Модел | GCS | |
| Страна на произход | ||
| 1 | Описание на функцията | |
| 1.1 | Това е група от изтеглящи се шкафове за разпределителна уредба за ниско напрежение, които могат да се управляват лесно и безопасно. | |
| 2 | Оперативни изисквания | |
| 2.1 | Електрическото захранване може да бъде изключено ръчно и автоматично при претоварване и късо съединение. | |
| 3 | Системна конфигурация | |
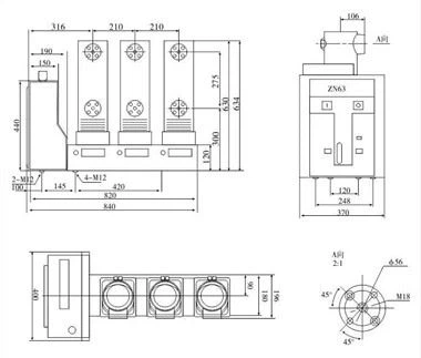
| 3.1 | Изтеглящ се шкаф за разпределителна апаратура за ниско напрежение с всички основни компоненти и медна шина | |
| 4 | Технически спецификации | Оценки |
| 4.1 | Номинално напрежение на главната верига | 400V |
| 4.2 | Номинална честота | 50Hz |
| 4.3 | Номинално напрежение на изолация | 690V (1000V) |
| 4.4 | Максимален работен ток на главната шина (мед) | 1000A |
| 4.5 | Номинален издържан ток на главната шина | 100KA/1s |
| 4.6 | Ниво на защита | IP40 |
| 4.7 | Режим на работа | Ръчно и автоматично |
| 4.8 | Тип метално чекмедже | 8E или 16E или еквивалент |
| 4.8.1 | 400А чекмедже | 1 бр. |
| 4.8.2 | 300А чекмедже | 1 бр. |
| 4.8.3 | 250A Чекмедже | 1 бр. |
| 4.8.4 | 200А чекмедже | 2 бр. |
| 4.8.5 | 150A Чекмедже | 2 бр. |
| 4.8.6 | 100А чекмедже | 2 бр. |
| 4.9 | Външно измерение | Прибл. (80cm X 105cm X 220cm) |
| 4.10 | Всяко чекмедже трябва да има 3-цифров или аналогов амперметър за индивидуално измерване на 3-фазовия (RYB) ток | |
| 4.11 | Шината трябва да бъде от меден трифазен четири проводник със защитно заземяване (R,Y,B,N,PE). | |
| 4.12 | MCCB трябва да бъде с високо качество и чувствителен | |
| 4.13 | Задвижването на чекмеджетата трябва да е лесно и гладко. | |
| 4.14 | Дръжката на чекмеджето трябва да е силно изолирана и здрава | |
| 4.15 | Външният размер трябва да съответства приблизително на (80cm X 105cm X 220cm) | |
| 4.16 | Външният дизайн и цветът трябва да съответстват на дизайна, както е показано на снимката | |
| 5 | Тава за шини | |
| 5.1 | Поставката за шини трябва да бъде монтирана в горната част на отделението на функционалния модул, а свързващата линия и общата захранваща мрежа могат да бъдат поставени в поставката | |
| 5.2 | Необходимият брой шини трябва да се свържат от съществуващата система към инсталирания шкаф чрез гайка-болт/шинова канална система според изискванията | |
| 6 | Аксесоари, резервни части и консумативи | |
| 6.1 | Трябва да се осигури допълнителна (резервна) дръжка (дръжка за смяна) за всяко чекмедже | 18 бр |
АКО СЕ НУЖДАЕТЕ ПОВЕЧЕ ПОДРОБНОСТИ, МОЛЯ СЕ СВЪРЖЕТЕ С НАС






